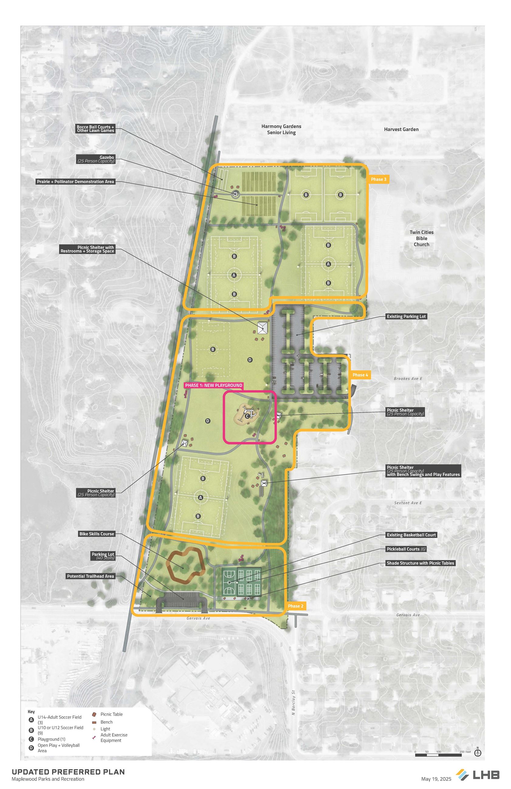
Native Seed Garden
The City of Maplewood partners with Urban Roots on the 1.5-acre native seed garden located on the north side of the park. The garden has a mix of native forbs and grasses, designed to facilitate the harvesting of seed from plants to use in future restoration projects. Urban Roots offers youth employment and programming around natural resources conservation. The garden provides opportunities for youth interns to learn job skills and make contributions to the community. It also provides educational and service learning opportunities for schools and the general public.